20
$649,900 Sale
Listed 10 hours ago
439 ALICE Avenue
· 3
· 1
· 0
· 700-1100
Listing History
Buy/Sell/Terminated/Expired listing history for 439 ALICE Avenue
Key Facts
Key facts for 439 ALICE Avenue
Property Type
House, 2-Storey
Parking
None 0 garage, 3 parking
MLS #
X12493124
Size
700-1100 sqft
Basement
Unfinished
Listed on
2025-10-30
Lot size
55 x 0.0
Tax
$2,863 /yr
Days on Market
1
Approximate Age
-
Maintenance Fee
-
Description
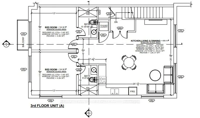
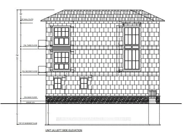
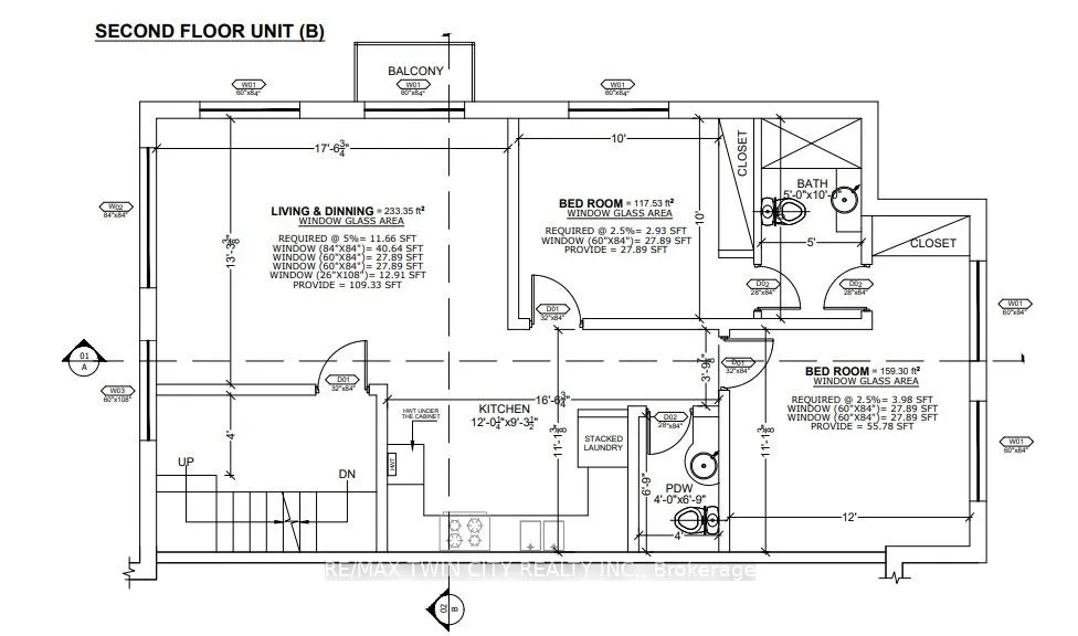
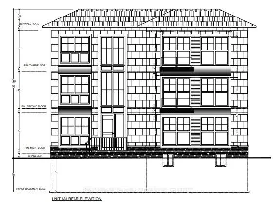
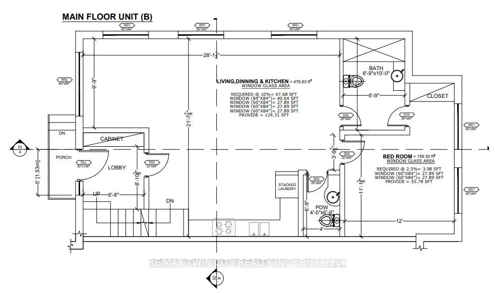
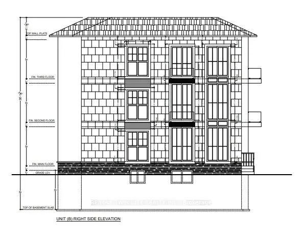
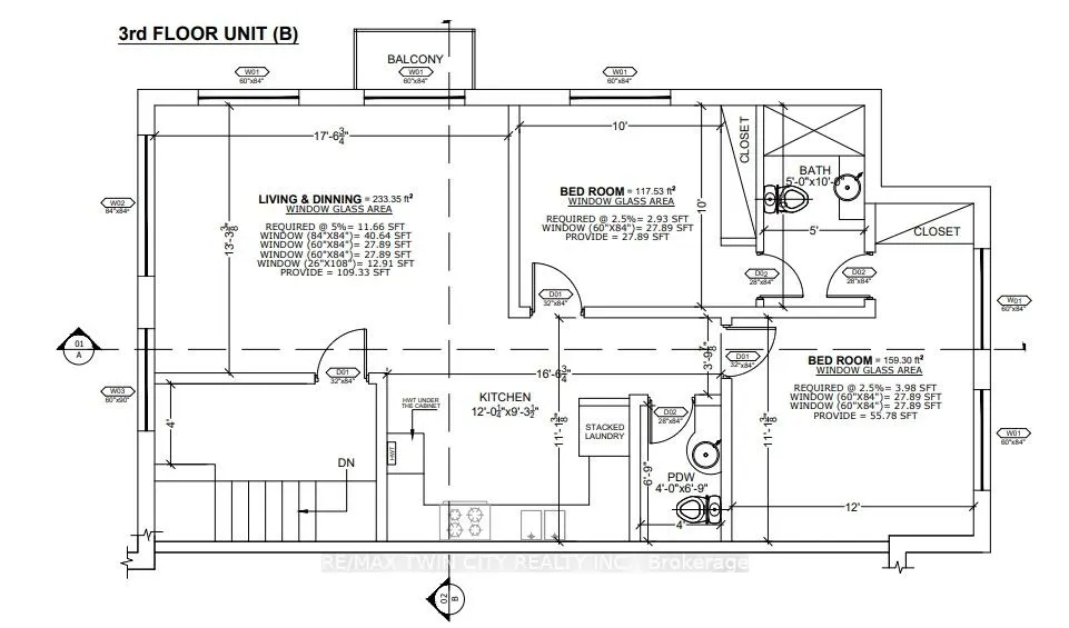
Approved by the City of Kitchener. Attention developers and investors! 6 units possible here. Redevelopment site for 2 triplex's (built as 2 x semi-detached with 3 units in each - see photo gallery for conceptual rendering). Plans attached as supplement documents. Existing structure is best to be ri...pped down. This property is brimming with potential-pre-approved by the City of Kitchener for a triplex redevelopment. Situated on a large lot in the heart of Kitchener. The existing home currently offers 3 bedrooms and 1 bathroom, providing a solid foundation for renovation or expansion. Conveniently located near public transit, the LRT, Google, Victoria Park, shopping, and other key amenities, this property presents an incredible opportunity for those looking to invest or undertake a full home renovation.
Similar Properties (No results)
Courtesy of: RE/MAX TWIN CITY REALTY INC.